Описание
Название объекта:
Горького, 14
Описание бизнес-центра:
Отдельно стоящее 6-этажное кирпичное здание
Адрес:
630099, г. Новосибирск, Железнодорожный район, ул. Максима Горького, 14
Год постройки:
2005
Юрлицо собственника:
ООО "Л.Марти" ИНН 5407255442
Строительная h помещений:
3000
Полезная h помещений:
2700
Количество мокрых точек:
15
в т.ч. унитазов:
8
Наличие ОПС:
Да
Наличие вентиляции:
Да
Наличие кондиционирования:
Да
Наличие/условия паркинга:
2 места на территории, въезд через шлагбаум
Лифтов всего:
1
Наличие грузового лифта:
Да
Основной провайдер:
РТК
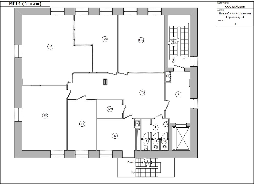
Помещение 1
Этаж: 4
Тип планировки, преобладающий вид отделки: Смешанная. Внутренние перегородки алюм, стекло, гкл, обои. Потолок подвесной и гкл. Стены - окраска. Пол - керамогранит, ламинат, линолеум. Входная дверь противопожарная светопрозрачная.
Лед-освещение: Да
Кол-во мокрых точек: 6
в т.ч. унитазов: 3
Наличие электросчётчика: да
Наличие водосчётчиков: да
В данный момент помещение свободно
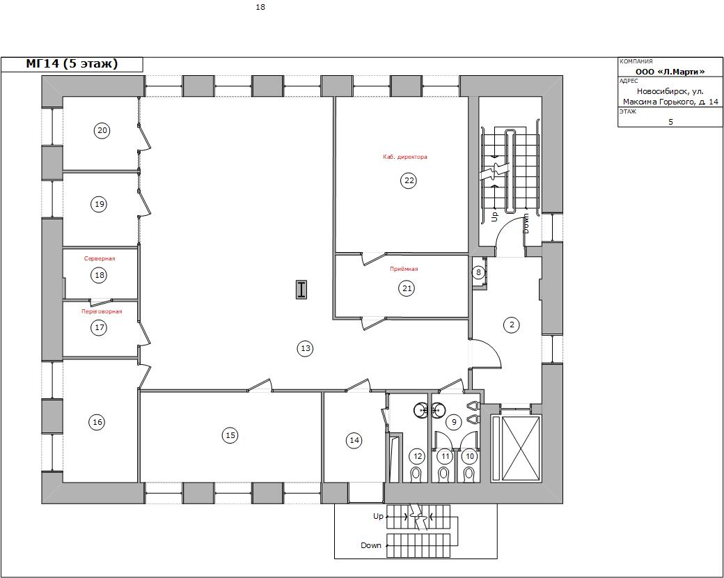
Помещение 2
Этаж: 5
Тип планировки, преобладающий вид отделки: Смешанная. Внутренние перегородки алюм, стекло, гкл, обои. Потолок подвесной и гкл. Стены - окраска. Пол - керамогранит, ламинат, линолеум. Входная дверь противопожарная светопрозрачная
Лед-освещение: Да
Кол-во мокрых точек: 6
в т.ч. унитазов: 3
Наличие электросчётчика: да
Наличие водосчётчиков: да
В данный момент помещение свободно
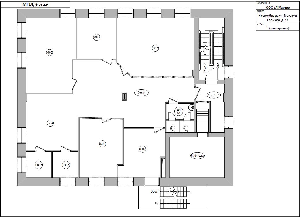
Помещение 3
Этаж: 6
Тип планировки, преобладающий вид отделки: Смешанная. Внутренние перегородки алюм, стекло, гкл, обои. Потолок подвесной и гкл. Стены - окраска. Пол - керамогранит, ламинат, линолеум. Входная дверь противопожарная светопрозрачная
Лед-освещение: Да
Кол-во мокрых точек: 3
в т.ч. унитазов: 2
Наличие электросчётчика: да
Наличие водосчётчиков: да
